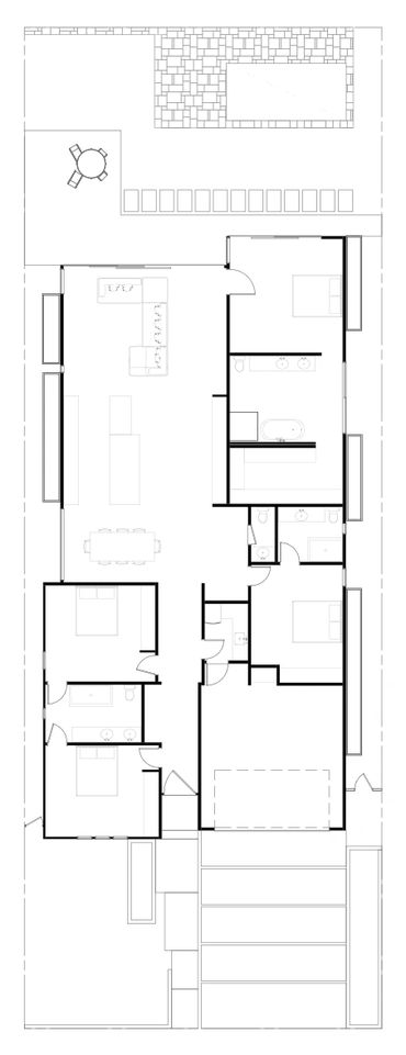
This single-story luxury home exudes European sophistication with a unique exterior, featuring a roof system cable and a custom oak front door. The entryway, illuminated by skylights, introduces a theme of sophistication and German cabinetry found throughout.
KITCHEN AND LIVING ROOM
The kitchen, the heart of the home, boasts continuous German cabinetry, skylights, German faucets, and Thermador appliances. The large Caesarstone island, with additional German cabinetry, is a focal point, complemented by a black pantry. The living room features sleek black aluminum windows and a sliding door with a hidden track system, seamlessly connecting with the outdoor living space equipped with an alcohol-burning fireplace.
MASTER BEDROOM & BATHROOM
The master bedroom is a true retreat, with modern solid oak floors and a hidden curtain system controlled by a Control 4 remote system. The German cabinetry walk-in closet provides plenty of storage space, while the master bathroom is equally impressive. The Italian stone floor and walls, Italian Calacathe stone bathtub and shower with raised platform, and modern Caesarstone sinks all contribute to a spa-like atmosphere. The in-wall toilet, modern backlit mirror, and skylights add to the luxurious feel of the space.
SECONDARY BEDROOMS & BATHROOMS
The secondary bedrooms, all with oak floors, include ensuite bathrooms with Italian stone, in-wall toilets, and modern Caesarstone sinks. A shared Jack and Jill bathroom is found between bedrooms 3 and 4.
POWDER & LAUNDRY ROOM
The powder room highlights a standing Caesarstone sink and in-wall faucets. The laundry room, equipped with a washer/dryer and German cabinets with a Caesarstone counter, stands as a functional space.
OUTDOOR SPACE & POOL
The outdoor living space is equipped with a fireplace alcahole burning system that adds warmth and ambiance to the area. It also features a standout lap pool with a Swim In Place System, black coping tile, WPC deck, and fencing system, complemented by gravel. This luxury home harmoniously blends style, functionality, and comfort, offering a truly lavish living experience.
Project Role: Architect, Developer and Project Manager
Project Size: 3000 square ft.
Completed in 2019
Photo Credits: Christopher Nolasco



We use cookies to analyze website traffic and optimize your website experience. By accepting our use of cookies, your data will be aggregated with all other user data.